Ежедневно 08:00 до 22:00
Автомобиль для охоты и рыбалки "Охотник-1"

Автомобиль «Охотник 1» - современное предложение любителям охоты и рыбалки. Он предоставляет все для комфортной жизни и одновременно позволяет полностью отдаваться любимому делу.

Подробнее
Автомобиль для охоты и рыбалки "Охотник-1"

Современное предложение любителям охоты и рыбалки – дом на колесах. Он предоставляет все для комфортной жизни и одновременно позволяет полностью отдаваться любимому увлечению.

Подробнее
Автомобиль для охоты и рыбалки "Рыболов"

Уходит в прошлое бессмертная «Буханка». Современное предложение любителям рыбалки – дом на колесах. Он предоставляет все условия для комфортной жизни и ловли.

Подробнее
Автомобиль для активного отдыха "Путешественник-1"

Специфика природы и дорог в России такова, что идеальный автомобиль для путешествий здесь – полноприводный дом на колесах, комфортабельный и абсолютно проходимый.

Подробнее
Автомобиль для активного отдыха "Путешественник-2"

В России с ее бездорожьем, крутыми природно-погодными условиями и трудно различимыми зонами «поле-болото-море-болото-поле» правильной машиной представлялся только КАМАЗ для путешествий.

Подробнее
Автомобиль для активного отдыха "Путешественник-3"

Надежный автомобиль для путешествий, если планируются туристические поездки в разные уголки России и выезды на природу по выходным – это большой полноприводный автомобиль-дом со всеми удобствами.

Подробнее
Автомобиль-лаборатория

Передвижная метрологическая лаборатория, лаборатория экологического контроля, диагностики автомобильных дорог и др. выполняют свои задачи во все времена года, в самых разных природно-климатических условиях.

Подробнее

Каталог продукции

Каталог Лебедок

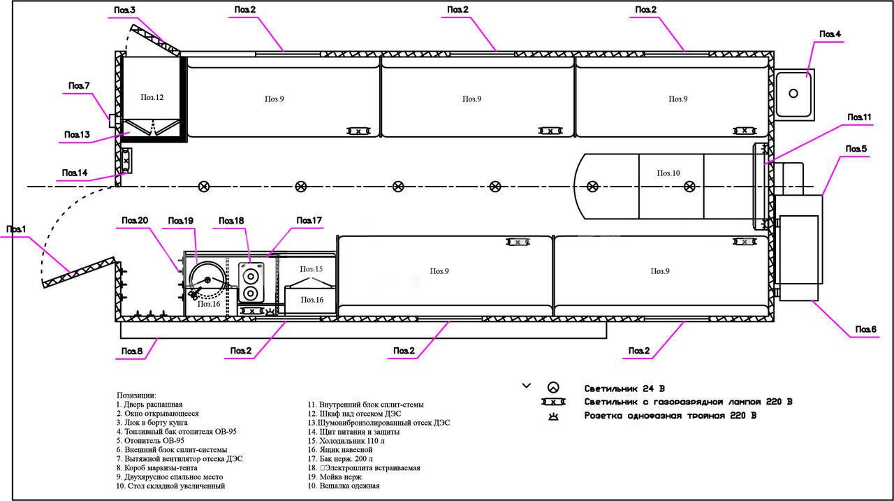
3D проектирование >> Схемы планировки автофургонов

Схемы планировки автофургонов


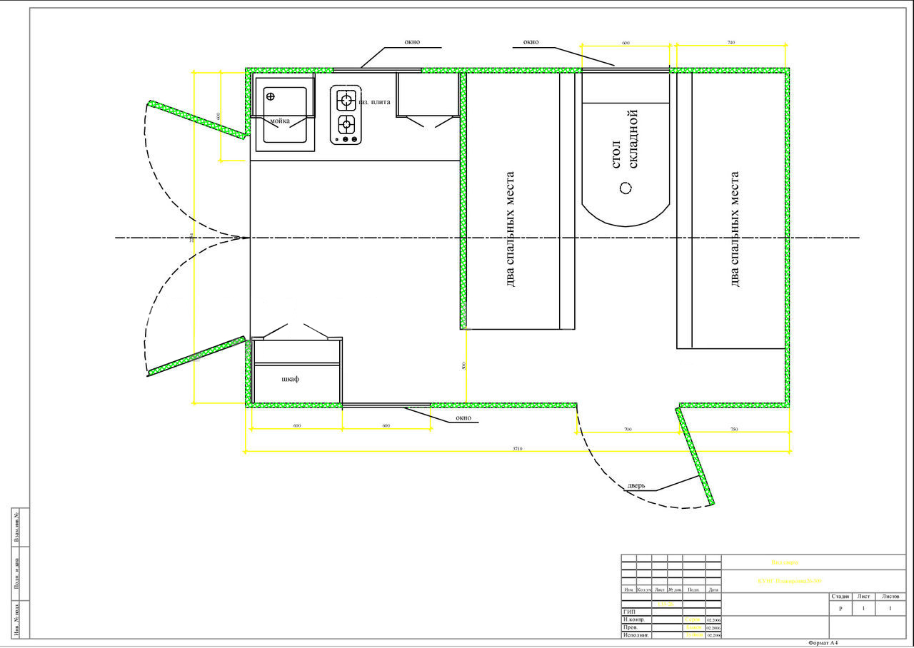
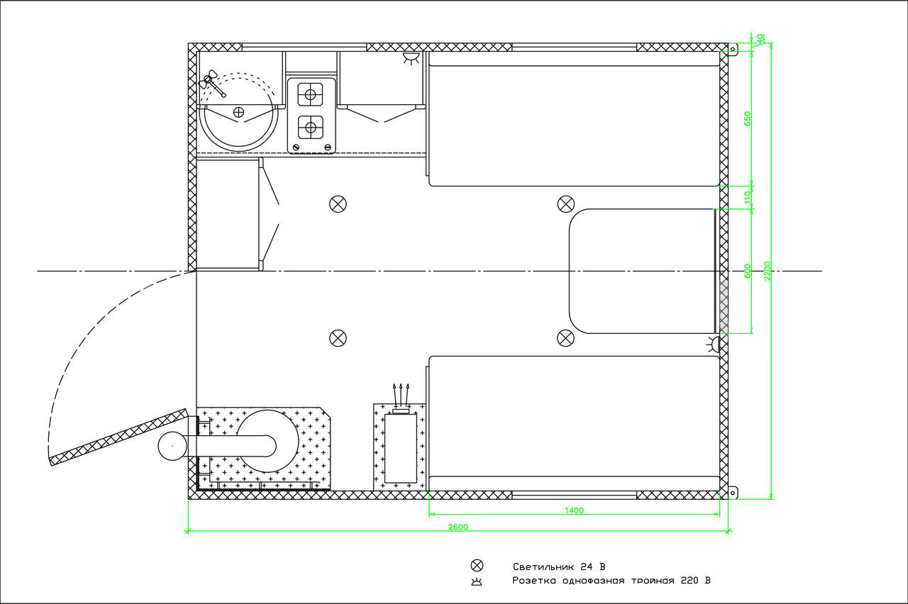
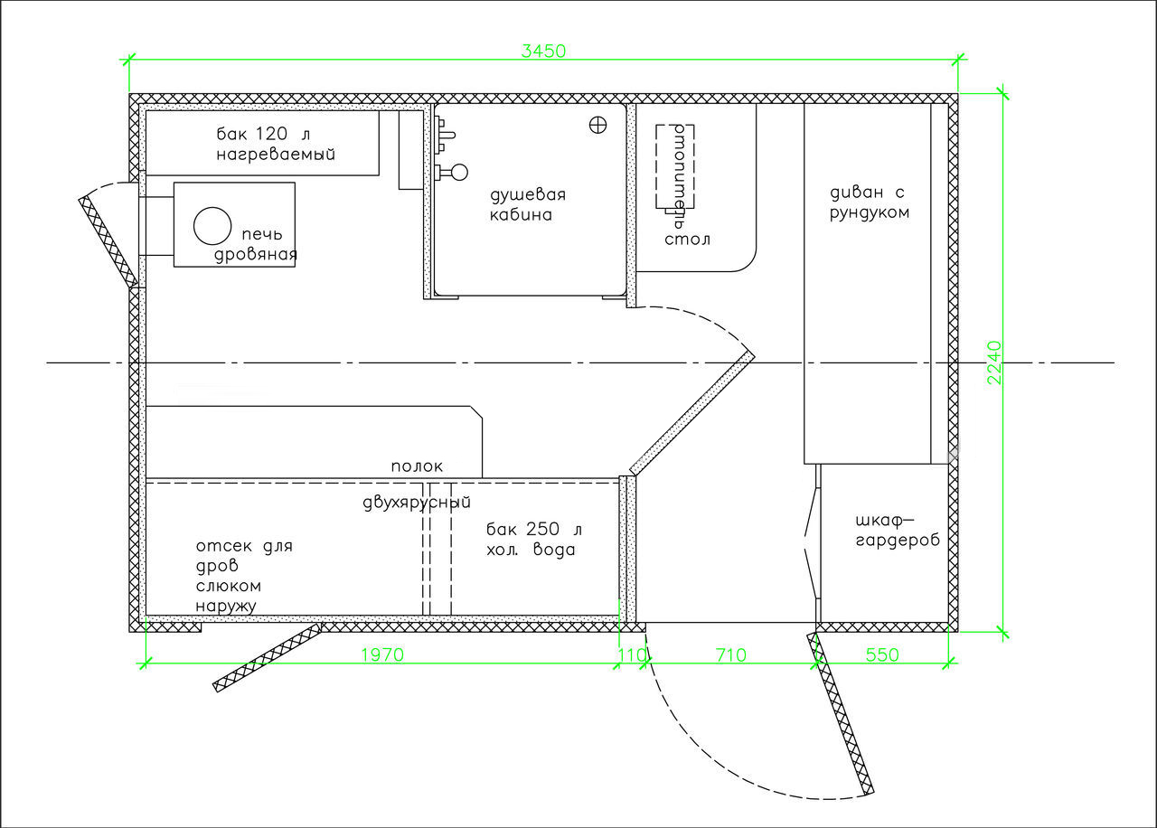
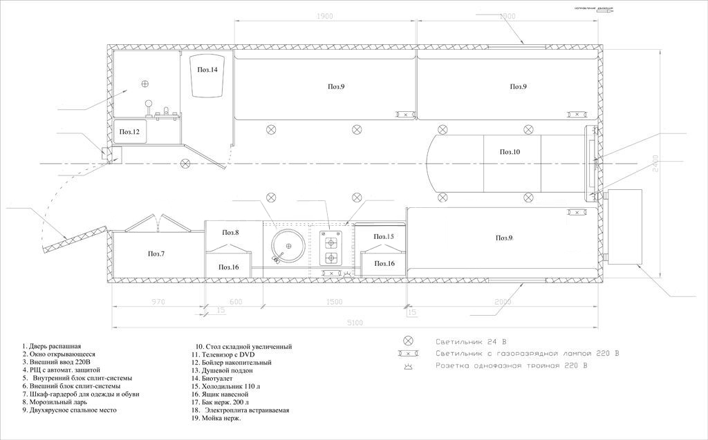
 2,6 метровый фургон на
базе ГАЗ 3308 "Егерь"
4 спальных места,
мини-кухня, стол, дровяная печь...


 2,6 метровый фургон на
базе ГАЗ 3308 "Егерь"
4 спальных места,
мини-кухня, стол, дровяная печь...


 2,6 метровый фургон на
базе ГАЗ 3308 "Егерь"
4 спальных места,
мини-кухня, стол, дровяная печь...


 2,6 метровый фургон на
базе ГАЗ 3308 "Егерь"
4 спальных места,
мини-кухня, стол, дровяная печь...


 2,6 метровый фургон на
базе ГАЗ 3308 "Егерь"
4 спальных места,
мини-кухня, стол, дровяная печь...


 2,6 метровый фургон на
базе ГАЗ 3308 "Егерь"
4 спальных места,
мини-кухня, стол, дровяная печь...


 2,6 метровый фургон на
базе ГАЗ 3308 "Егерь"
4 спальных места,
мини-кухня, стол, дровяная печь...


 2,6 метровый фургон на
базе ГАЗ 3308 "Егерь"
4 спальных места,
мини-кухня, стол, дровяная печь...


 2,6 метровый фургон на
базе ГАЗ 3308 "Егерь"
4 спальных места,
мини-кухня, стол, дровяная печь...

Наши специалисты готовы ответить на все ваши вопросы, проконсультировать вас о представленных товарах и услугах.

Получить консультацию?